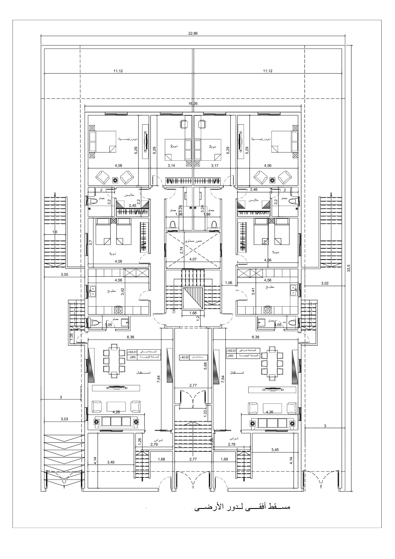
مخطط معماري لعماره سكنيه
17
تفاصيل العمل
تخطيط معماري ثنائي الأبعاد لعماره سكنيه في بيت وطن في التجمع
تعليقات
لم يتم ترك أي تعليق حتى الأن
مشاركة معرض الأعمال
تعجبك !، قم بمشاركها
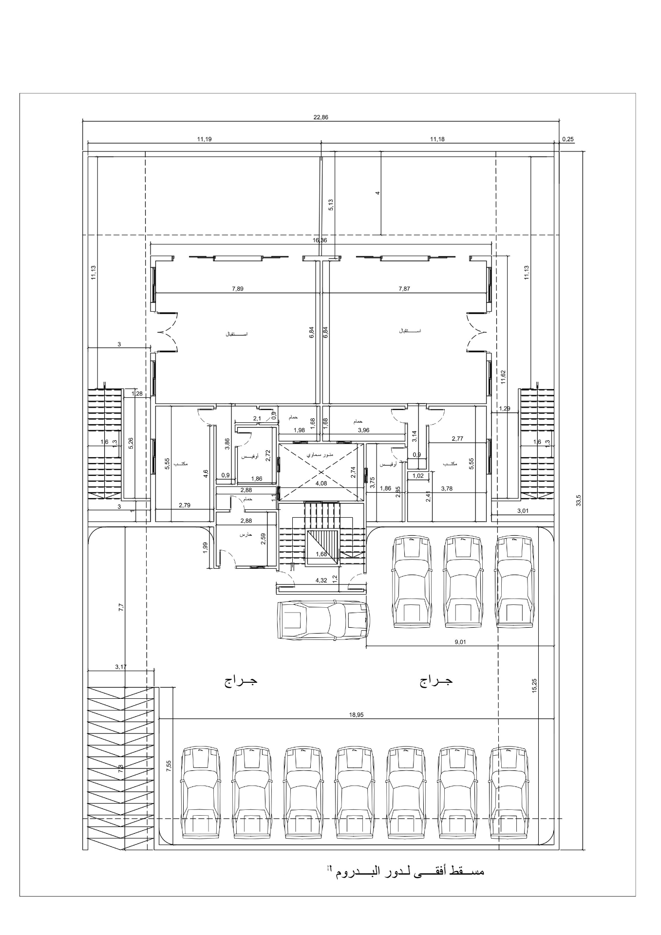
تخطيط معماري ثنائي الأبعاد لعماره سكنيه في بيت وطن في التجمع
لم يتم ترك أي تعليق حتى الأن
تعجبك !، قم بمشاركها